10 Fotos und Anhänge ansehen
ASAN Immobilien
Bahnhofplatz 15, 94315 Straubing
Tolga Asan

Inhaber

Teilen

Außenansicht

Außenansicht II

Flur

Büro 1

Büro 2

Büro 3

Flur II

Küche

WC 1

TG-Stellplatz

*** TOP KAPITALANLAGE IM ZENTRUM VON MOOSBURG AN DER ISAR ***

Eckdaten

  • Art Wohnung
  • Lage 85368 Moosburg an der Isar
  • Kaufpreis 279.900,00
  • Wohnfläche ca. 85
  • Zimmer 3
  • Kellerfläche ca. 6
  • Baujahr 1995
  • Etage 1
  • Heizungsart Gas-Heizung
  • Einbauküche ja
  • Gäste-WC ja
  • Stellplatztyp Tiefgarage
  • Stellplatzanzahl 2
  • Garagenkaufpreis 20.000,00
  • Vermietet ja
  • Zustand Gepflegt
  • Immobilien-ID 143
  • Provision 3,57 %

Immobilie

Kaufpreis: 279.900 € (Einheit) + 10.000 € (TG-Garage Nr.1) + 10.000 € (TG- Garage Nr. 2) somit insgesamt: 299.900 € zzgl. 3,57 % (inkl. 19 % USt.) Maklercourtage.

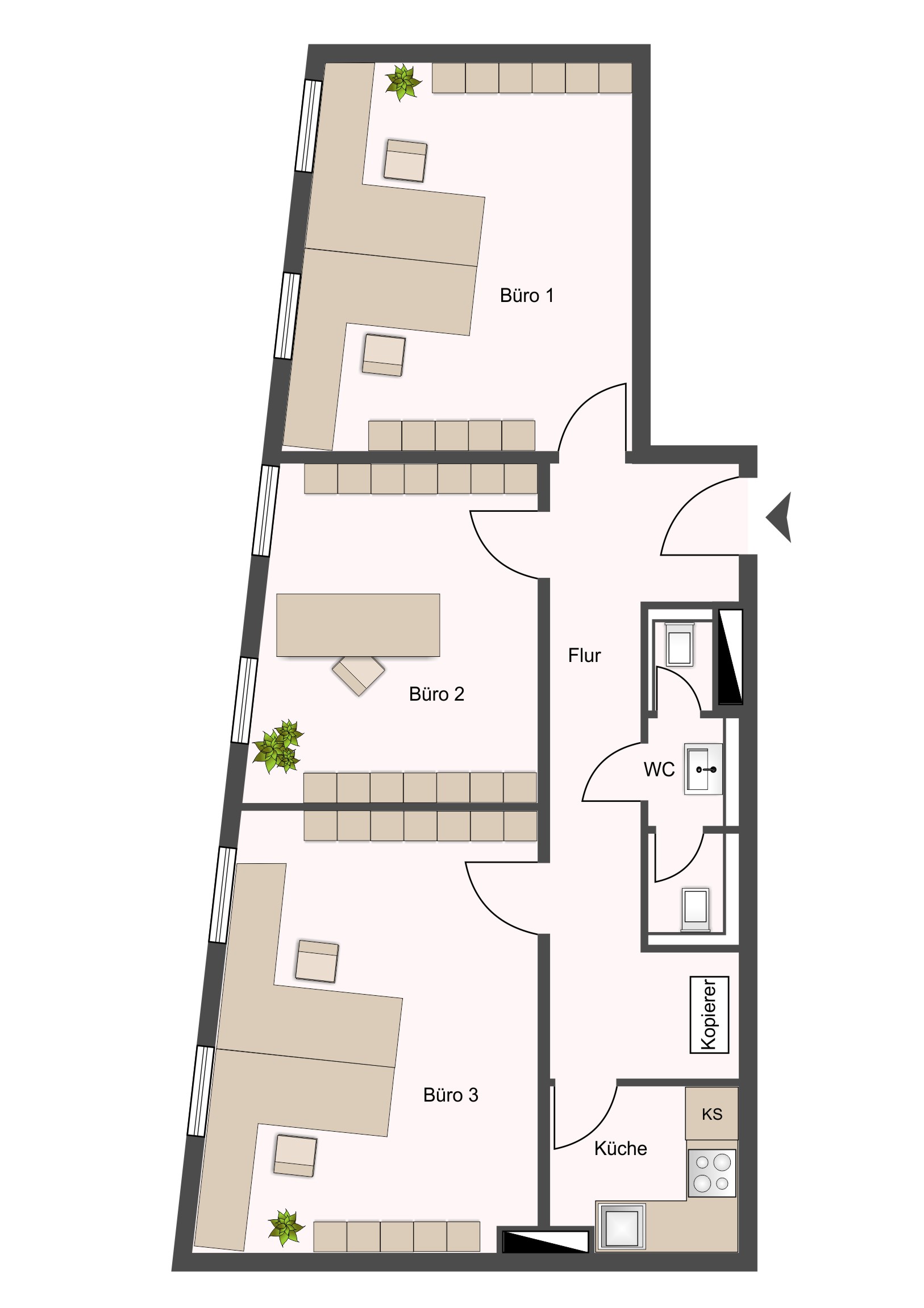
Die Büroräume in Moosburger Top-Lage haben eine Fläche von ca. 84,5 m² und bieten viel Platz für ein modernes Arbeitsumfeld.

Die Einheit im ersten Obergeschoss besteht aus drei großzügigen Büroräumen mit jeweils 21 m², 22 m² und 15 m² Fläche, die alle mit zwei großen Fenstern ausgestattet sind und somit eine angenehme Arbeitsatmosphäre bieten.

Zusätzlich verfügt die Einheit am Ende des Flurs über eine voll ausgestattete Küche. Auf der linken Seite des Flurs befindet sich ein WC-Bereich mit zwei gegenüberliegenden Toiletten und einem Waschbecken in der Mitte. Die gesamte Einheit ist in einem gepflegten Zustand und besticht durch ihre Großzügigkeit und Helligkeit.

Neben dem Büroareal offeriert dieses Objekt ein besonderes Highlight - nämlich zwei Tiefgaragen-Stellplätze, die zur Immobilie gehören. Aktuell beläuft sich die Kaltmiete des Büros auf 1.000,- Euro und 100,- Euro für die beiden Tiefgaragen-Stellplätze. Die letzte Mietanpassung erfolgte vor ca. 10 Jahren. Derzeit finden Sanierungsarbeiten im Innenhof statt, die durch bereits vorhandene Rücklagen vollständig abgedeckt sind. Das bedeutet für Sie , dass Sie sich keine Sorgen über zusätzliche Kosten oder Gebühren machen müssen, um den Innenhof in einwandfreiem Zustand zu halten. Des Weiteren wird in nächster Zukunft eine Sanierung der Tiefgarage durchgeführt, welche die Wertigkeit des Anwesens potenzieren wird. Komplettiert wird das Angebot durch eine professionelle Betreuung des Objekts sowie eine langfristige Mieterbindung.

Die Nebenkosten betragen 170,- €.

Eine Gaszentralheizung mit Heizkörpern sorgt für eine effiziente und komfortable Beheizung der Räumlichkeiten.

Aufgrund der Tatsache, dass sich die hier präsentierte Büro-/Praxiseinheit in einem gemischt genutzten Gebäude mit Gewerbe- und Wohnbereichen befindet, entsteht eine ansprechende Synthese aus Arbeits- und Privatumfeld. Eine Umwidmung in Wohnraum wäre prinzipiell möglich. Dadurch ist die Büroeinheit nicht nur für diejenigen geeignet, die nach einem adäquaten Arbeitsplatz suchen, sondern ebenso für Praxisbetreiber, welche eine ruhige und professionelle Umgebung wünschen.

Lage

Moosburg an der Isar ist eine idyllische Kleinstadt in Bayern, gelegen im Herzen des Landkreises Freising. Die Stadt zeichnet sich durch ihre Lage am Fluss Isar und die umliegenden grünen Landschaften aus, die zum Wandern und Radfahren einladen. Moosburg verfügt über eine historische Altstadt mit vielen charmanten Fachwerkhäusern, sowie eine moderne Infrastruktur mit zahlreichen Einkaufsmöglichkeiten, Restaurants und Cafés.

In Moosburg gibt es ein reges kulturelles Leben mit vielen Veranstaltungen und Festen, wie dem bekannten Volksfest, das jedes Jahr im Sommer stattfindet. Die Stadt ist auch ein wichtiger Wirtschaftsstandort in der Region, mit vielen mittelständischen Unternehmen und Industriezweigen wie der Luftfahrtindustrie.

Dank seiner günstigen Lage ist Moosburg gut an das Verkehrsnetz angebunden. Der Flughafen München ist in nur 20 Minuten mit dem Auto erreichbar, ebenso wie die nahe gelegene Stadt Landshut. Auch die Anbindung an das öffentliche Verkehrsnetz ist ausgezeichnet, mit Bus- und Bahnverbindungen in alle Richtungen.

Die beliebte Münchenerstraße, in der sich die Immobilie befindet, ist ein gefragtes Geschäftszentrum und bietet eine Vielzahl von Annehmlichkeiten. In unmittelbarer Nachbarschaft finden sich zahlreiche Einkaufsmöglichkeiten, Banken, Ärzte und weitere Dienstleistungen.

Als besonderes Highlight befindet sich die renommierte Bäckerei Welter direkt unterhalb der Büroeinheit und bietet somit eine hervorragende Versorgung mit frischen Backwaren und Snacks.

Ausstattung

- 3 helle Büroräume
- separate Küche
- 2 Toiletten
- 2 Tiefgaragenstellplätze
- Geschirrspüler
- hervorragende Lage

Keller Vermietet Gäste-WC Einbauküche

Energieausweisangaben

A+
A
B
C
D
E
F
G
H
  • Enerigeausweistyp Verbrauchsausweis
  • Energiekennwert 111 KWh(m²*a)
  • Energieeffizienzklasse D
  • Energie mit Warmwasser ja
  • Energieausweis erstellt am 24.04.2018
  • Energieausweis gültig bis 24.04.2028
  • Heizungsart Gas-Heizung
  • Befeuerung / Energieträger Erdgas schwer

Grundrisse

Wie können wir Ihnen behilflich sein?

Herzlichen Dank für Ihre Anfrage.

Wir werden diese so schnell wie möglich bearbeiten.

Wie können wir Ihnen behilflich sein?
* Pflichtfeld